Our References Works
Error
Home
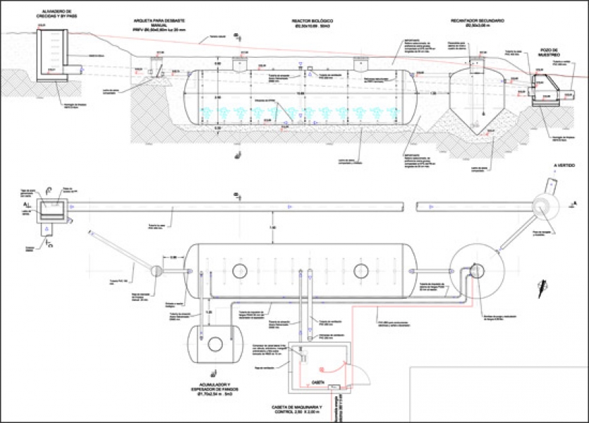
Warehouse in Villanueva de Perales
Construction of a warehouse in Villanueva de Perales
View of warehouse
Wall formwork Villanueva de Perales
Construction of a warehouse in Villanueva de Perales
Wall formwork
Valve chamber Villanueva de Perales
Construction of a warehouse in Villanueva de Perales
Valve chamber
Pipes connection Villamantilla
Construction of a warehouse in Villamantilla
Replacing the pipe connection



























